鄭州市二七區領導蒞臨榮盛科技集團調研指導!
鬧元宵 | 換上新衣裳,來榮盛做最靚的仔~
喜訊!榮盛耐材順利通過「國家高新技術企業」復審認定!
喜訊!榮盛耐材被認定為「鄭州市企業技術中心」
熔鋁爐結構及內襯耐火材料損毀解決方法介紹
耐火磚可以耐急冷急熱多少次,如何加強熱震性能?
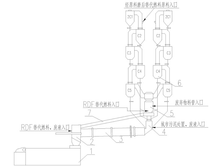
危廢焚燒回轉窯技術及內襯耐材選擇
燒結鎂砂生產原理、性能衡量及種類介紹
自焙炭磚在大型礦熱爐使用怎么樣?
工業窯爐耐火材料烘爐時間,及烘爐注意事項介紹
大型熔鋁爐會用到哪些耐火材料?
石灰、耐火原料在煅燒豎窯內物料煅燒特性介紹
榮盛耐材三臺60000方氣化爐內襯耐火材料項目如期交付
富氧側吹直接煉鉛工藝介紹
轉爐維護用耐火材料的應用技術及展望
原料煅燒豎窯的種類及窯內物料煅燒特性
耐火材料:在煉銅反射爐內襯的應用
榮盛耐材熱烈歡迎九三學社河南省科技廳委員會蒞臨指導!
耐火磚:爐排式垃圾焚燒爐內襯損毀的原因及改進措施
耐火磚:氣化爐內襯為什么采用多層?以下5點需要了解!
教師節《榮盛模擬試卷》已打包,畢業多年的你還能及格嗎
耐火材料:煉鐵高爐關鍵部位的應用及發展介紹
榮盛耐材參加第六屆全球跨境電子商務大會
耐火材料廠家:鍋爐型號及耐火內襯要求解答!
七夕 | 榮盛人的愛情宣言,拿去撩你喜歡的人吧!